Accessory Dwellings

A one-stop source about accessory dwelling units, multigenerational homes, laneway houses, ADUs, granny flats, in-law units…

Detached Bedroom as Tiny Home

A few years ago I had the opportunity for my mother-in-law to move in with my family in our NE Portland home. We didn’t have space in our home for her, and even if we did it seemed like giving her some privacy and personal space would make the situation better in the long run.

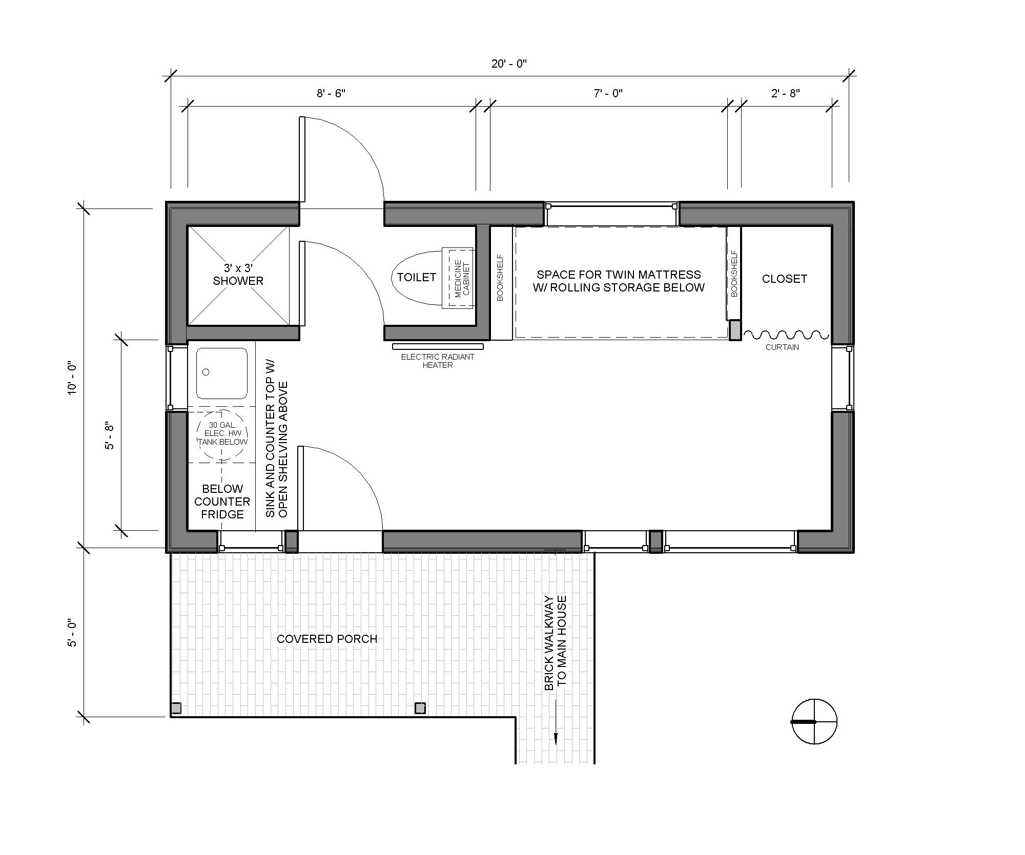
We decided to build a 200 square foot tiny home that would be largely self sufficient (with a bathroom and kitchenette), but that would rely on the main house for supplementary functions (storage, laundry, major cooking). When we started the permitting process the ADU System Development Charges (SDCs) were not waived as they currently are until 2013 2016  in Portland. Otherwise the costs are $12,000-27,000+, so we opted to create the building as a Detached Bedroom. This approach has pros and cons.

ADU vs DETACHED BEDROOM

The main difference between an ADU and a Detached Bedroom is that an ADU counts as additional density to the city, whereas a Detached Bedroom is considered an addition to the existing house. A Detached Bedroom cannot be rented out as a standalone apartment nor can it be built to function as one. The main way that the city draws this line is the presence of a full kitchen, as denoted by a sink and power for a range (220 electric outlet or gas).  That said, this is a distinction that was made during my experiences with specific planners at specific times.  City code is up for interpretation and I would strongly suggest taking any proposal in to the city and reviewing it with a planner early on in the process. In my project the sink is removed from the bathroom and serves double duty as a lavatory and a kitchenette sink. If you have two sinks in a Detached Bedroom I’ve heard that it is necessary to sign a covenant with the county that you will not rent it out. This configuration seemed to me the closest one could come to an ADU. No full kitchen and an inability to rent it out are two large marks against the Detached Bedroom, so why build one?

The biggest reason for me was cost. SDCs would have constituted 1/3 of the budget. It is inexplicable to me that you’d have to pay SDCs twice for an ADU and a 2 bedroom 1 bath house, but only once for a 5 bedroom 4 bath house. Another reason is design. There are strict regulations on the size, height, and placement of ADUs and how they relate to the main house. With a detached bedroom there are no regulations that wouldn’t apply to a normal house (size, height, lot coverage, etc). You could build a 3 story tower clad in purple sheet metal if you wanted, as long as it didn’t have a second kitchen in it (and met zoning code!). There are also provisions in the zoning code that the roof pitch, siding, windows, trim and eaves of an ADU need to match the existing house. These restrictions won’t affect many people but can be a problem if one wanted to pursue a modern or less conventional design.

COSTS

The ultimate cost for the tiny house was around $27,000 or $135/sq. ft. I was initially aiming for $100/sq. ft. because it was a nice round number. However, building small is inherently more costly as you have all the utility connections, permit fees, windows, doors, fixtures, etc without the bedrooms and large living areas to spread out the expensive stuff. This was also despite a lot of cost savings, as I did all the design, drafting, interface with the city, also acted as the general contractor and did around half of the physical labor. For the other half I hired a handy friend, as well as subcontractors for the electrical, plumbing and tile setting.  Windows were probably the largest splurge (Marvin Integrity fiberglass windows with wood interior) while areas cut back on were asphalt shingle roofing (instead of metal), electric heat (instead of gas), fiberglass batt insulation (instead of anything else).

MATERIALS

A big focus of the design was the materials template. In a small space one has much more intimacy with all surfaces and objects, so making sure they are appealing is an even more important aspect of the design. We tried to use as much salvaged materials as possible and have as few painted drywall surfaces as possible. Instead, the majority of the walls are finished with American Clay and accented with wood and tile. The bathroom did end up being painted as was the exterior trim and some of the interior trim. Salvaged materials include the exterior siding, exterior doors, T&G fir flooring, cabinet doors, tile, interior wood trim and built-in furniture.

In the end the project took around 9 months and was done on weekends and during some Great Recession furloughs. It has been very successful as a way to accommodate a changing family while adding value to our home.

Schuyler Smith is an Architect and small living enthusiast in Portland, OR. He is the co-founder of Polyphon Architecture & Design LLC.

About Schuyler Smith

Schuyler Smith is an Architect and small living enthusiast in Portland, OR. He is a co-founder of Polyphon Architecture & Design LLC.

41 comments on “Detached Bedroom as Tiny Home

  1. kolpeterson
    November 29, 2011

    Schuyler, those are some really interesting points about the distinctions, pros, and cons between ADUs and detached bedrooms. And your point about SDCs (ADU + 2 BR 1 BA vs a 5 BR 4 BA) brings in to question whether any ADU should ever be subject to disproportionally burdensome SDCs.

    Nationally, much like Tiny Houses on trailers, ‘detached bedrooms’ may be a useful regulatory loophole for other homeowners to investigate if they are running up against restrictive regulations that are tied to the construction of ADUs in their municipality. Used creatively, a detached bedroom provide the same living functions that an ADU can provide, and can be built at a significantly lower cost.

    • Schuyler Smith
      November 29, 2011

      I can imagine a system for SDCs where there would be a base line amount of square footage and fixtures per lot and then anything above that is pro-rated, although I’m sure that would have flaws as well.

  2. Martin John Brown
    November 29, 2011

    Thanks so much for sharing this, Schuyler, including the budget and the drawings. I’m curious about the heater you chose–what is it, and how is it working out?

    But in general, the more I look at the photos and drawings, the more thoughtful this place seems. It’s almost a little class in “what to do right” with a tiny dwelling in accessory mode.

    I totally agree about the need for care with materials in such a small space. The users are going to be only a few inches from them all the time. So they have to be good looking, and also very durable (because they’re going to get bonked a lot). In my ADU we spent an absurd $2000 extra for curved concrete counters, but they are just so much richer and deeper than formica it was worth it… the users touch that counter every day.

    I note you have fairly large windows in all the primary “living positions” (by the sink and the bed) which can provide some longer views to alleviate the sense of compression in a small house. You’ve got a covered porch (so you can open the door while it’s raining, a must in Oregon). Also there is a filter of planting beds and fruit trees between the accessory structure and the main house–which will give you future opportunities to mix or adjust the balance of privacy and connection between the two dwellings (e.g. by planting or pruning). Living architecture… nice. 🙂

    • Schuyler Smith
      November 29, 2011

      Thanks Martin. The heater is a Convectair ‘Apero’ radiant heater. It has no fan so is totally silent, which is very nice. Manual controls though which could be an issue for some users. It is working well and is able to keep up in the winter with no problem. Lastly it has a very slim profile and is comparatively cheap! (~$300)
      Yes, the tiny house and it’s windows were positioned to try to give as much privacy as possible given that it is the bedroom of the house as well. One regret is that the windows weren’t positioned better for passive solar heating. Now all we need is some evergreen screening for the winter after the garden is taken out!

  3. Eli Spevak
    November 29, 2011

    Great home and great post, Schuyler! Good point that planners have a certain amount of discretion in whether or not to require execution and recording of ‘second sink agreements.’ I did have to sign one for the Ruth’s Cottages project, where each detached bedroom had a sink outside the bathroom (containing a shower facing a toilet, just like yours).

  4. Lauren
    September 27, 2012

    Hi Schuyler,

    I visited your house on the Build it Green tour a couple of years ago, and was intrigued. I’m now considering a similar project and was curious about how much setback (rear and side) you allowed? And what the minimum is? Whatever info you could share, I’d very much appreciate!

    Thanks!

    • Schuyler Smith
      September 27, 2012

      Lauren – Glad you liked the project. In typical residential neighborhoods side and rear set backs are both 5′. There are variations for different zonings, alleys, etc… but usually it is 5′ for standard lots. I’m a registered architect so if you come to a point where you need some more help I’d love to hear more about the project! Best of luck.

      • Lauren
        September 28, 2012

        Hey Schuyler, Thanks so much for your prompt reply! I do have a couple more questions – how can I email you?

      • Schuyler Smith
        September 28, 2012

        I sent you an email with my address, which you can send any further questions so. Hopefully it didn’t get spammed! Thanks.

  5. jacobwolfnelson
    September 18, 2013

    Hi Schuyler,

    Would you happen to know of any forums or resources to help DIY back house home builders with the planning and building process of a structure like this?
    Thanks
    Jacob

  6. jacobwolfnelson
    September 18, 2013

    Scratch that comment. I didn’t realize I had finally found the website I needed–this one!

    • Schuyler Smith
      September 19, 2013

      Great that you’ve discovered the site. I’m just an occasional contributor but they are an excellent resource here. If you have any specific questions I’m happy to try and help. If you need a more in depth consultation get in touch and I can help with any/all aspects of your project (polyphon.com). Good luck!

  7. jacobwolfnelson
    September 19, 2013

    Schuyler,
    Thanks for your quick reply. Can you send me your email address?

  8. kenny
    October 22, 2013

    Now that SDCs are waived, are there any restrictions in building that add cost associated with ADU’s, still? Any advantages that come to mind with detached bed room designation? I imagine taxes would be impacted less if it was not designated as a rental/ADU officially. For someone like me, who just wants the space for a relative to live in, I imagine this route is still worth it. Or, because the fees are waived for SDC’s would that advantage be much slimmer? Would a Firewall for instance be required on an added bed room or work shop designation? Is there a fee to waive renting the location and signing said document with an added sink? I wonder if there would be regulatory aspects in roofing, framing, type of insulation, flooring, door installed, type of windows or efficiency aspects that might add expense to a project under the ADU premise?

    • Schuyler Smith
      October 22, 2013

      Kenny,
      There are still definitely factors that would make a detached addition more attractive than an ADU, although whether they are better for your specific needs are hard to say. Setbacks, fire rating and building code are generally the same for ADUs and detached additions. If you are building an addition it will have to meet current code. That said, an ADU is basically treated as a new home so there are additional costs and steps involved. The permitting process is much longer for ADUs. An ADU may take 2-3 months minimum while permits for additions can often be granted over the counter on the same day. There are also a lot of design regulations for ADUs that don’t apply to additions. Paradoxically an detached addition can look however you want while a separate living unit ADU is required to match the existing house. Stormwater management is another area where I believe an addition smaller than 500sq’ will not require you to specially manage your runoff while a 500sq’ ADU would require some kind of facility, be it a drywell or bioswale. I could be wrong on that last point but that is my understanding. Depending on the circumstances I think a detached addition can save some money and time although the differences are too numerous and nuanced to fully go into here. Email me at schuyler {at} polyphon.com if you’d like to talk more specifically about your project. Thanks.

  9. Pingback: Lesa Dixon-Gray’s ADU: Putting Mom in a Home, Sweet Home | Accessory Dwellings

  10. Michele D
    August 27, 2014

    Do you know if all bedrooms can be detached? So that 4 single people could live together (separately) but share a main livingroom, kitchen, and laundry, my idea is to have a mini eco village where each of us share the mortgage -each person will own their bedroom-bathroom unit plus 1/4 share of the rest of the property. Do you think this would be viable in Portland? I already know that up to 5 unrelated people can live together on one lot. I have a child so that would equal 5 persons in our case.

    • Martin John Brown
      August 27, 2014

      Michele, Your idea sounds similar to “Ruth’s Garden Cottages,” a project by Eli Spevak (who’s an editor on this site)… http://www.orangesplot.net/ruths-garden-cottages/ Not technically accessory dwelling units, but a very similar idea. Can anyone chime in on what the limits are for this type of development?

    • Schuyler Smith
      August 27, 2014

      I’m not sure what would be the limiting factor in a scenario like this. I believe Ruth’s cottages was permitted for three detached bedrooms but was ultimately built with only two. One thing that could be an issue is accessory lot coverage. “Accessory” structures are only allowed to take up 15% of the entire lot, so once you start breaking everything off of the main building, it begins to really eat up that number. If some were attached via breezeway to the main building that might be a way to count them as part of the primary dwelling. Another heads up is that the city now (in my experience) treats these detached bedrooms as separate little buildings. This is getting a little into the weeds but for zoning purposes they are treated as “additions” (ie, not ADUs) but for building code purposes they are kind of treated like separate buildings. So they require them to be pretty energy efficient and provide conservation and efficiency measures as you would a new home or ADU. Sketch up your idea and take it down to the city permit center (1900 SW 4th Ave. in portland) and they can help you figure out the issues. They will be very conservative though so be aware. Feel free to get in touch via my website polyphon.com if you’d like to have us take a look. I think something like this could be done but it of course depends on a lot of site specific info. Hope that helps!

  11. Pingback: Isabel Johnson & Brad Creel’s ADU: A Backyard Guest Room | Accessory Dwellings

  12. Michelle
    March 4, 2015

    Very old thread here but I thought I would try! I am converting my existing 240 sq ft garage into an ADU. Currently I have a 16 ft yurt in my backyard that my daughter lives in. I would like to remove it and build a structure for her that isn’t a tent and has a bathroom. Curious if you know if you can have a detached bedroom AND and ADU on the same property?

    • Schuyler Smith
      March 4, 2015

      Michelle,
      Good question, still relevant. Yes you are allowed to have a detached bedroom as well as an ADU on the same lot. There might be other factors that would limit what you are able to do like Total Accessory Lot Coverage (15%), or some other zoning rule but yes, there is nothing prohibiting having both on one lot. As your garage is small and presumably the detached bedroom wouldn’t be huge, there probably isn’t an issue. Good luck! -Schuyler

      • Michelle
        March 5, 2015

        Fantastic! Thanks for replying so quickly Schuyler. Just so I am clear, code says “Total building coverage of all detached covered accessory structures may not exceed 15 percent of the total area of the site in the R zones” I do not need to count my house or garage as part of that 15%? So with a 7000+ sq ft lot, I could conceivably have a detached structure or structures that total around 1050 sq ft?

  13. Schuyler Smith
    March 5, 2015

    That is correct. Unless the garage is detached, then that would also count as part of the accessory building coverage. Another rule is that an accessory building can’t have a larger footprint than the primary residence, but that is pretty rare.

    • Michelle
      March 6, 2015

      Time to start building my commune 🙂 Now I just to navigate that new tree code. Oy.

      • Anna Tennis
        March 27, 2017

        New tree code?

      • Schuyler Smith
        May 10, 2017

        Anna,
        The city instated revised code language/rules for trees back in January of 2016 I believe. Some rules affect ADUs/additions/detached additions and some are only for new development. The biggest rule for ADUs is that you need to preserve/protect 1/3rd of existing trees w/ trunk diameter over 12″.

        Official rules:
        https://www.portlandoregon.gov/citycode/?c=66002

        Slightly more user friendly City of Portland Trees page:
        https://www.portlandoregon.gov/trees/

        -Schuyler

  14. K Wiebke
    May 9, 2015

    Hey Schuyler,
    Any knowledge about appraisal value for tax purposes? If I have an ADU versus a detached living space, will my property taxes be any higher with one or the other?
    Thanks

    • Martin John Brown
      May 10, 2015

      From my (perhaps skewed?) point of view I don’t think it makes sense to focus a lot on property taxes. Assuming you get permits, property taxes will go up either way (detached bedroom or ADU). Which will make it go up more depends on how the assessor (not quite the same as an appraiser) feels about the relative values of those improvements.

      However, in terms of long-term economic value as an income generator, an ADU should trump a detached bedroom. If something is clearly 100% an independent dwelling, that has more value in terms of monthly rent than a detached bedroom. Over years, this difference in potential income would completely swamp any small difference in property taxes between the two development options.

      Going with an ADU, if you can afford to make one, gives you more options in the future. Only if you’re absolutely positive that you don’t want to ever rent the place out as an independent unit does it make sense to keep it as a detached bedroom.

      Obviously, this is my opinion! 🙂 Good luck!

      • Schuyler Smith
        May 11, 2015

        I agree with Martin’s points fully. An ADU will add much more value to the property with a pretty insignificant increase in costs. I don’t have a precise understanding of the tax implications but presumably an ADU would raise your taxes more than a detached bedroom. At this point (5/2015, while the SDC waivers are in place), first cost shouldn’t be the driving factor in deciding between the two. Really the issues that might drive you to a detached bedroom are trying to avoid the ADU design/size/height guidelines. Next summer if the city drops the SDC waiver, cost will come back as an issue and may make detached bedrooms more relevant again.

  15. Pingback: Real estate rage in Portland! Or, ode on a purple shed | Accessory Dwellings

  16. REBECCA MODE
    June 12, 2015

    My property is a duplex in R2a and I was informed I am not allowed to build an A.D.U. I am interested in building a detached bedroom and curios if I could legally rent it out on Airb+b In the same manner I could rent out a bedroom in my house.I would prefer to have a design a kitchen could be added to later as I may live in it later on. Also are there size and height maximums for detached bedrooms? I am allowed to build more regular units on my property as it is a large square foot lot. I would like to leave that option open for the future but can not finance a complete unit right now.

    • Schuyler Smith
      June 12, 2015

      My guess would be that yes, it would be treated similarly to a room in your home. For zoning purposes, it is treated as part of the primary residence. You are not allowed to have a kitchen in a detached bedroom though. The size and height are regulated by the rules for the base zone so for R2.5 height is 35′ I believe. There is the potential to build multiple detached bedrooms on a property. There is a project called Ruth’s Cottages done by Eli Spevak of Orange Splott and this site which got three detached bedrooms permitted along side a small single family residence. They are only allowed to be a bathroom and bedroom though. Seems like a detached bedroom could be a good option for your situation though!

      • Kheggem3@ail.com
        June 13, 2015

        I believe you can have a Kitchen, but no stove in a detached BR. Also 1 sink, just the bath or the kitchen.

        We reviewed the options for a couple of years and decided against ADU.

        We are concerned that despite the simplicity of our very small detached garage conversion, talking 200 sq ft, we might still end up with increased taxation.

        Additionally, we want to retain our garage. There’s no driveway or parking at our home, thus could make future selling of the home a big concern.

        So we just plan to add a bath room and put a kitchenette, simple 2 burner could be added on the counter if need be, but all I really want is a sink and microwave and little fridge.

        No need to add a sub box, it has electric already that can handle a bath
        with fan and a microwave.

        I might add wide opening French doors instead of the electric garage door, main need is parking a small car as necessary in there.
        I’ll paint the floor to give it some urban chic studio style.

        It’s already insulated, so bonus there to! No need for firewalls we couldn’t add due to lack of space between the property line fence. That and the taxes and car parking are what sealed the deal that this would just be a extra room but mostly comfortable work space.
        Replacing the fixed windows with sliders, improving the drywall, adding the stand up shower wet room with toilet squeezed in the corner, simple kitchenette. Easy stuff mostly.

    • Staub Sauger
      November 9, 2015

      Rebecca ,

      I saw you were looking to come tonight, November 9th , 2015, to the Eliot Land Use committee to discuss your property. I had hope to connect with you as I also was against having the neighborhood folks downzone my extra large parcel of lots down to R2.5. I have been working with the Bureau of Planning and Sustainability’s Comp Plan process to protect the R2 Zoning with which I brought the property 20 Years ago. I agree with your sentiments.

      IN Our case, we are next door the Infamous giant phallic “ben “Kaiser Towers” that City Council magically offer the rights to build 8 to 9 stories tall with a magic wand at Portland City Council. Downzoing long time working class neighbors next to rich developers getting to go from 3 stories to 8 or 9 makes no sense and is unethical from a solar perspective.

      I will work to be a sincere and open ear to hear your concerns. I am hopeful this post sends you an auto reply that someone commented on your post, as I have no other way to reach you before the public meeting tonight.

      Thanks
      S

  17. Anonymous
    April 29, 2016

    I just built a detached bedroom in Colorado for my elderly dad. Called it an art studio so it had to meet the heated space requirements. No water or sewer but it does have a bathroom and a mini-kitchen. I came up with some ingenious ways around the water/sewer thing. Total cost was $30k for 336 sq ft and took 3 months to build.

    • Martin John Brown
      May 1, 2016

      Thanks for your comment. Can you clarify what you mean when you say it does have a bathroom and mini-kitchen despite the fact that it has no water or sewer? Also feel free to give us a link to pictures. Lots of people are probably thinking of similar things.

      • Anonymous
        May 1, 2016

        I bought a hutch off of CL for $80 to use as his kitchen. It holds a mini-fridge, microwave and coffee pot (everything my dad needs and nothing he doesn’t). If I were so inclined I could include a toaster oven but honestly he’d never use it. He doesn’t cook at all. Any dishes that he accumulates I put into a $2 bus tub and every other day I bring it to the main house to wash.

        His unit also has a water cooler rental that has a hot and cold water dispenser so he has potable water to make his tea or coffee.

        In the bathroom I purchased a used Ozark River portable sink. Comes with two 5 gal jugs underneath, one for fresh water and one for grey water. I have to fill them about every 10 days. It has an on-demand water heater so he can shave, wash his hands, etc. The parts for the sink can all be bought separately and inexpensively. The pump, the water heater the water lines are all readily available so in essence you could create more water storage than the 5 gal and install it into any vanity you choose. You could even create your own kitchen sink using the same components but for my dad the bathroom sink is all he needs. He comes inside my house to take a shower but he doesn’t like to shower anyway. He’s quite content only taking a shower every 3 or 4 days.

        The toilet is a Separett and the pee tube goes out through the wall and into a 3′ hole with some pea gravel. The vent for the toilet just goes through the roof.

        For my dad’s situation it’s worked out perfectly. It was far simpler and less expensive to build than any sort of addition to my house. I also am not a huge fan of converted basement living areas so building a detached residence was by far my first choice.

        It’s a super cute addition to the backyard landscape and it has total privacy. As far as bang for the buck goes I don’t think you can beat it and it was done with all the permits and inspections so there’s no worry of having to tear it down or move it in the future.

        I used a shed builder for framing, roofing, siding and windows. That was only $10k. I used a lot of beetle kill pine T & G for all the trim, ceiling and wainscot. I knew I was dealing with a tiny space so I actually bought the used furniture for the tiny house prior to building so that I knew exactly what dimensions I needed. That saved a ton because I didn’t have to pay someone to build me custom shelving or cabinets. Being able to use readily available standard sizes for doors and furniture and what not was a lifesaver.

        I have pictures but I don’t have a website or a blog or anything. You could always give me your email and I could send them over.

  18. Martin John Brown
    June 29, 2016

    Editor’s note: we’ve published a new story about an under-the-radar detached bedroom. Find it at https://accessorydwellings.org/2016/06/14/an-economical-detached-bedroom-for-dad/

  19. Raina
    June 6, 2019

    Since we want to create a short term rental, the detached bedroom is very appealing (to avoid the SDC – to get the waiver you have agree to no short-term rental for 10 years). I was aware of the one sink rule… but am confused about the oven one. Could you have a normal cook top range with no oven? Or is that not allowed? What’s the exact specifications on what is not allowed in terms of an oven? Thanks!

    • Schuyler Smith
      June 9, 2019

      Raina,
      Yeah, the oven rules are a bit hazy. There are many reasons why one would want a 220 outlet or a gas connection so I think they’ve stayed away from trying to use it to regulate the kitchen. I’d ask the folks down at the city to find out exactly they’d allow. They are typically pretty objective about these things, even though that seems counter-intuitive.
      -Schuyler

Comments are closed.

Information

This entry was posted on November 29, 2011 by in 399 SF or Smaller, Detached, Floor Plan, New Construction, Projects and tagged , , .
%d bloggers like this: