Accessory Dwellings

A one-stop source about accessory dwelling units, multigenerational homes, laneway houses, ADUs, granny flats, in-law units…

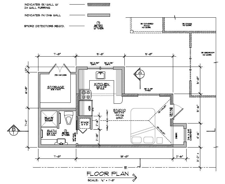
Endpoint Design ADU 1 Floor Plan

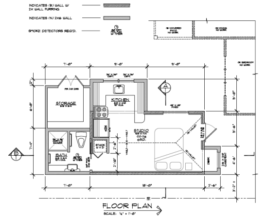
Endpoint Design ADU Floor Plan

Leave a Reply

Information

Published on December 16, 2015 at 738 × 605 in Endpoint Design ADU Profiles

Navigation