Accessory Dwellings

A one-stop source about accessory dwelling units, multigenerational homes, laneway houses, ADUs, granny flats, in-law units…

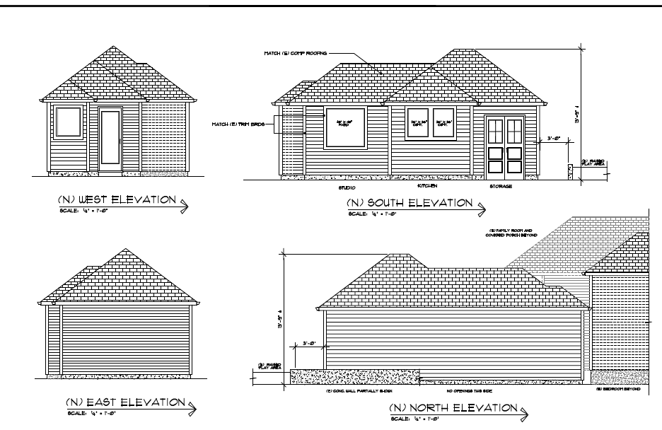
Endpoint Design ADU 1 Elevations

Endpoint Design ADU Elevations

Leave a Reply

Information

Published on December 16, 2015 at 936 × 608 in Endpoint Design ADU Profiles

Navigation