Accessory Dwellings

A one-stop source about accessory dwelling units, multigenerational homes, laneway houses, ADUs, granny flats, in-law units…

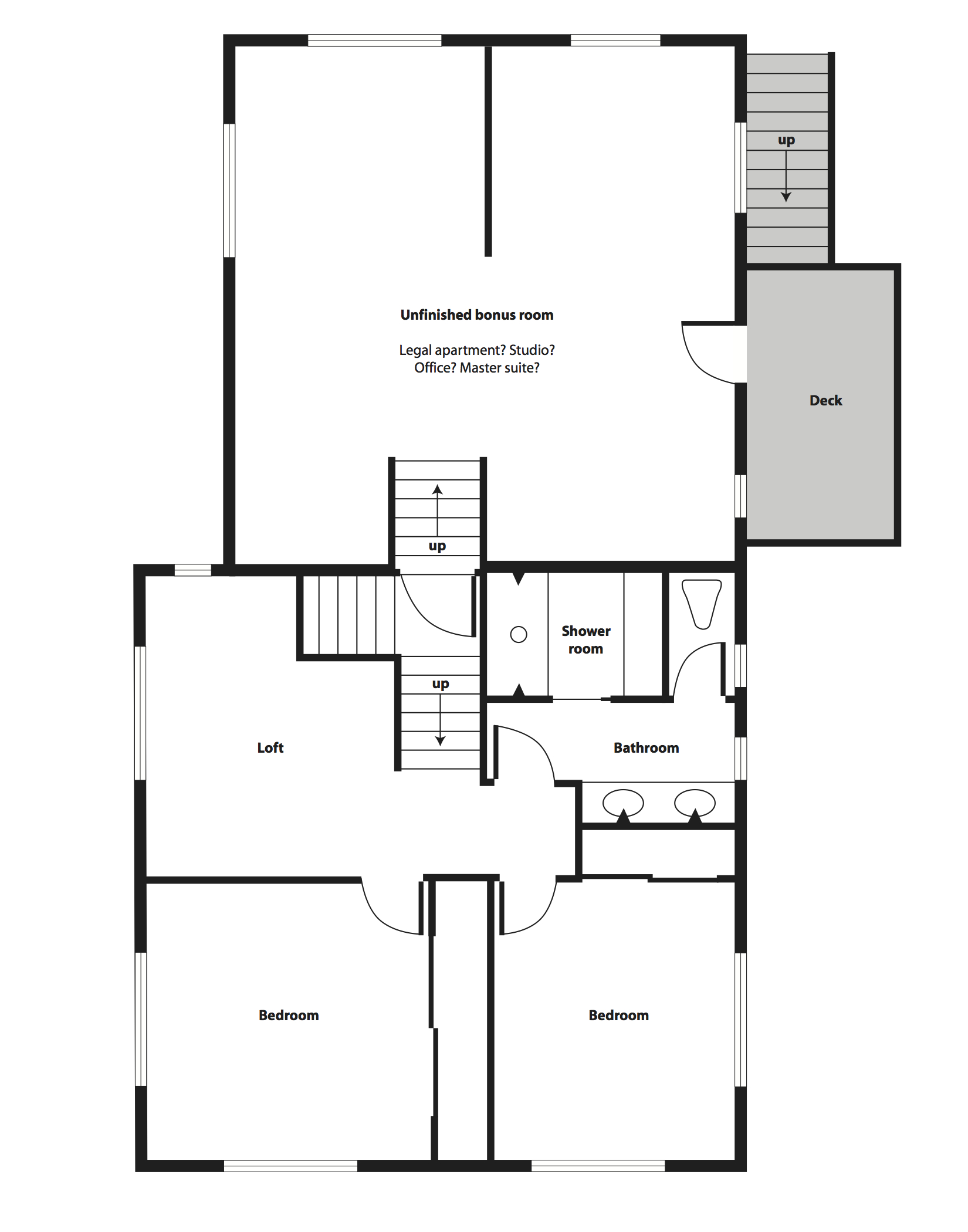
Lawrence ADU Second Floor Plan

Lawrence ADU Floor Plan

Leave a Reply